Skip to Content
  Terug naar de modellen 


Tiny House Sky

Alles gelijkvloers in ons grootste en meest complete Tiny House.

Bekijk de mogelijkheden

 

Dit Tiny House voldoet aan EPC voorwaarden (BE) en het bouwbesluit (NL)

Twee slaapkamers op het gelijkvloers


Ontdek dit moderne Tiny House met 2 slaapkamers waarbij er ruimte is voor een gezin óf een extra werkplek in huis.

Deze woning heeft alles gelijkvloers, waardoor het naast de perfecte permanente woonoplossing, uitermate geschikt is als mantelzorgwoning of ook als recreatiewoning.

Grote ramen zorgen voor veel natuurlijk licht en een ruimtelijk gevoel, terwijl de eenvoudige en flexibele indeling de mogelijkheid biedt om de leefruimte naar eigen wens aan te passen.

Met een afmeting van 11 x 3,45 x 4 m (LxBxH) behoort deze woning tot de ruime en luxueuse woningen!

Wat je krijgt


 Reeds beschikbaar vanaf € 84.700 incl. btw 

 Twee slaapkamers

 Uitermate geschikt als zorgwoning

 Off-grid mogelijkheden

 Slimme indeling met veel opslagruimte


Contact
interieur tiny house sky
keuken tiny house sky
badkamer tiny house sky
interieur tiny house sky
impressie badkamer tiny house sky
buitenkant tiny house sky

Kant en klaar of Casco

Je kan kiezen voor een volledig ingericht Tiny House of voor een casco variant. Hierbij kan je de binnenkant dan helemaal in eigen stijl afbouwen en hiermee ook kosten besparen.

Specificaties

Dit is er allemaal inbegrepen bij jouw Tiny House.

Binnenkant

 

Technische specificaties

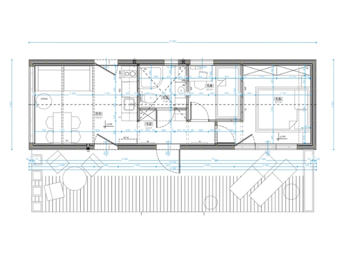
  •  Bewoonbare oppervlakte: 31 m²
  •  Woonkamer met keuken 11.8 m2
  •  Gang 3.3 m2
  •  Badkamer 3 m2
  •  1e Slaapkamer 8,7 m2
  •  2e Slaap- of kantoorkamer 4,2 m2 
  •  Wandbekleding met Huntonit panelen


  • Technieken

  •  Een gehomologeerde, elektrische installatie
  •  Ledverlichting binnen/buiten: energiezuinig en sfeervol
  •  5 waterpunten: keuken, badkamer, douche, toilet en wasmachine
  •  Boiler van 50L: voor warm water, efficiënt en betrouwbaar
  •  Airconditioning (2 units) voor verwarmen en koelen
  •  Optie: Installatie op gas, zowel om te koken als voor warm water
  •  Optie: Extra watertappunt buiten
  •  Optie: Vloerverwarming


Buitenkant

 

Afmetingen

  •  1100 x 345 x 410 cm (LxBxH)
         (uitzondering mogelijk op 350 cm hoogte ifv lokale regelgeving)
  •  Geschikt voor 4 personen


Gevelbekleding

  •  Combinatie van thermisch behandeld hout en metalen platen
  •  Optie: Shou Shugi Ban


Overige

  •  Ramen met driedubbel glas HR+++
  •  Muurisolatie 15 cm minerale wol
  •  Dakbedekking van plaatstaal: Sterk en bestand tegen alle weersomstandigheden
  •  Optie: Terras voor de woning
  •  Optie: 20 cm isolatie, voor meer energie-efficiëntie en comfort
  •  Optie: Dakramen voor extra lichtinval





plattegrond tiny house sky

Plattegrond beneden verdieping

plattegrond tiny house sky

Afmetingen Tiny House

Neem een kijkje van binnen

Neem virtueel een kijkje in de Tiny House Sky en laat je inspireren.

Prijs Tiny House Sky

buitenkant tiny house sky

Compleet

€ 92.100 incl. btw en transport*
(WKB variant heeft meerprijs)

De complete variant bevat alles wat je van een volwaardige woning mag verwachten en is direct klaar voor gebruik. Hieronder een overzicht van de onderdelen die zijn inbegrepen in deze prijs. Uiteraard zijn er vele extra opties mogelijk en kan je het Tiny House helemaal naar eigen wens indelen en stylen. 

Vraag de offerte aan

  • Voor deze prijs krijg je


  • Algemeen

  •  Tiny House geleverd op steunen (excl. plaatsingskost kraan)
  •  Gevelbekleding met Thermisch gemodificeerd hout en metalen platen
  •  Isolatie: 15 cm minerale wol in muren en dak
  •  PVC-kozijnen met driedubbele beglazing
  •  Enkele voordeur - 90 cm
  •  Gehomologeerde elektrische installatie, conform lokale regelgeving
  •  Knaagdierbescherming
  •  Binnenwanden bekleed met Huntonit
  •  LED-verlichting, wandlampen en spotjes
  •  Laminaatvloer
  •  2 slaapkamers op het gelijkvloers
  •  Rookmelder en brandblusser


  • Woonkamer

  •  Tafel met 4 stoelen
  •  Hanglamp boven de tafel
  •  Plissé gordijnen
  •  Airconditioning


  • Badkamer

  •  Wanden met FIBO waterbestendige tegels
  •  Standaard spoeltoilet
  •  Elektrische boiler 50L
  •  Douchecabine met glazen wand
  •  Wastafel met onderkast
  •  Aansluitingsmogelijkheid voor een wasmachine


  • Keuken

  •  Ingerichte keuken zoals afgebeeld
  •  Luxe spoelbak met kraan
  •  Tweepits inductiekookplaat
  •  Ingebouwde afzuigkap
  •  Ingebouwde koelkast
  •  Ingebouwde oven
  •  Voorbereiding aansluiting vaatwasmachine


Slaapruimte's

  •  Ruime slaapkamer met ingebouwde kasten
  •  Centraal verlichtingspunt in beide slaapkamers
  •  Airconditioning in de grote slaapkamer
  •  Groot bed met matras voorzien in de grote slaapkamer
  •  Stapelbed met matrassen in de kleine slaapkamer

Verwarming

  •  Airconditioning


  • Overig

  •  Installatie van de woning met aansluiting op de nutsvoorzieningen
  •  Plaatsing middels kraan worden apart berekend
  •  Wil je liever een casco prijs, neem dan contact met ons op.


*De transportkosten zijn een geschatte kostenpost. De exacte kosten hangen af van de exacte bezorg locatie van het Tiny House.

impressie interieur tiny house sky
impressie interieur tiny house sky
keuken tiny house sky
impressie badkamer tiny house sky
stapelbed tiny house sky

Extra opties

Ontdek wat er aan extra opties zijn voor dit model

Extra opties

 

Badkamer

  •   PVC vloer
  •   Wasmachine
  •   Hangtoilet
  •   Infrarood spiegel of handdoekdroger


Keuken

  •   Tafelmodel koelkast met vriesvak
  •   2- of 4-pits gaskookplaat
  •   4-pits inductie kookplaat


  • Verwarming

  •   Elektrische kachel met wifi
  •   Hout- of pellet kachel
  •   Vloerverwarming


 

Off-grid opties

  •   Compleet zonnepanelensysteem met batterij
  •   Compleet regenwaterrecuperatiesysteem
  •   Schoonwatertank
  •   Geiser op propaangas
  •   Koken op propaangas
  •   IBA tank voor grijs- en zwart water
  •   Droogtoilet naar keuze


Overig

  •   Gevelbekleding Shou Sugi Ban (gebrand hout)
  •   Muggenhorren in alle ramen
  •   Dimmer voor verlichting
  •   Sofa in woonkamer


demopark

Kom een van onze Tiny House modellen bezoeken in Almere (demopark)


Ervaar een van onze modellen, Porto, Sunshine of Little Nature XL


Bezoek het demopark